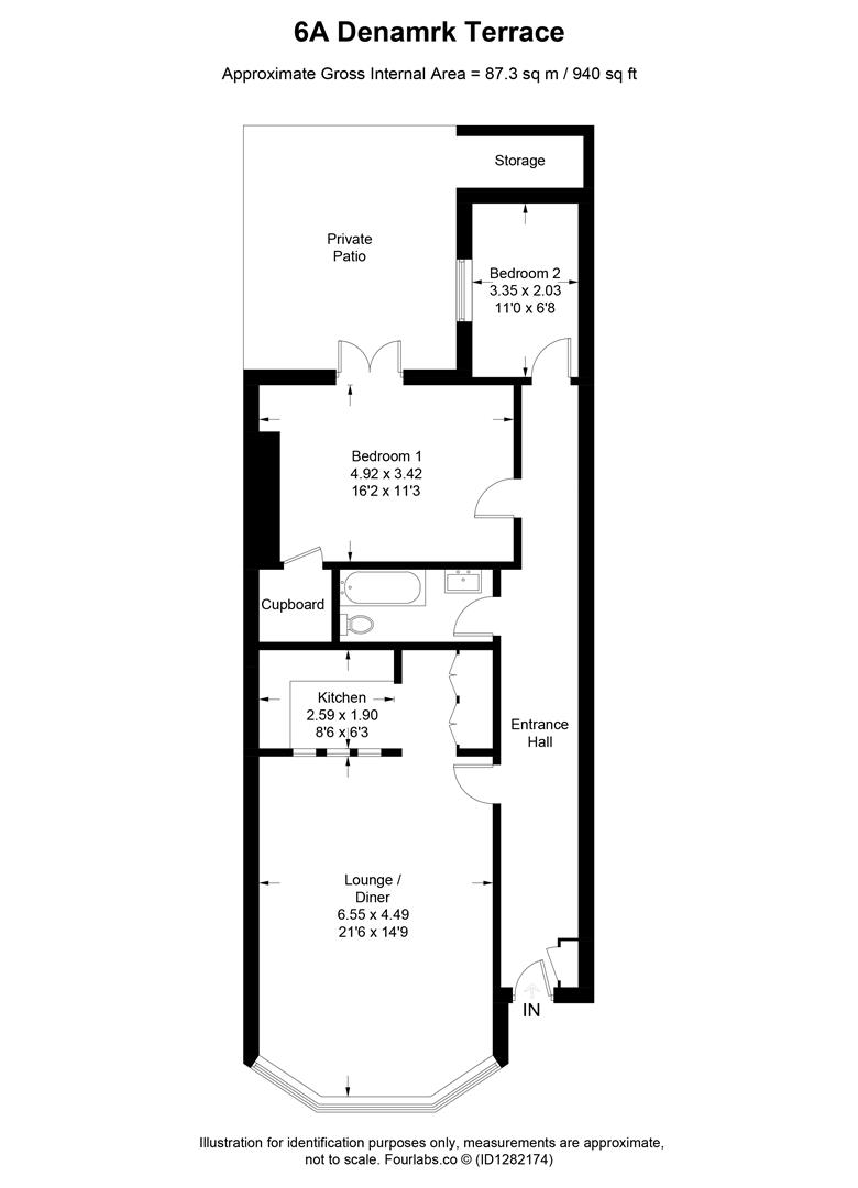
Denmark Terrace, Brighton
£425,000- 2 Bed
- 1 Bath
A well-presented, spacious two-bedroom lower ground floor apartment set within an attractive period building on the ever-popular Denmark Terrace in Seven Dials. Benefiting from excellent ceiling heights throughout, the property feels light, bright and airy, with a well-arranged living space and charming private patio garden.
The generous principal bedroom offers a peaceful retreat, and a versatile second bedroom, currently with bunkbeds, although would accommodate a double bed or a fantastic office space. Additional benefits include plenty of built in storage and own street entrance. Ideally located just moments from the cafés, shops and amenities of Seven Dials, and within easy walking distance of Brighton Station and the city centre, this is a superb home or investment in a highly sought-after central location.







































