Hogarth Road, Hove
£3,950 pcm- 4 Bed
- 3 Bath
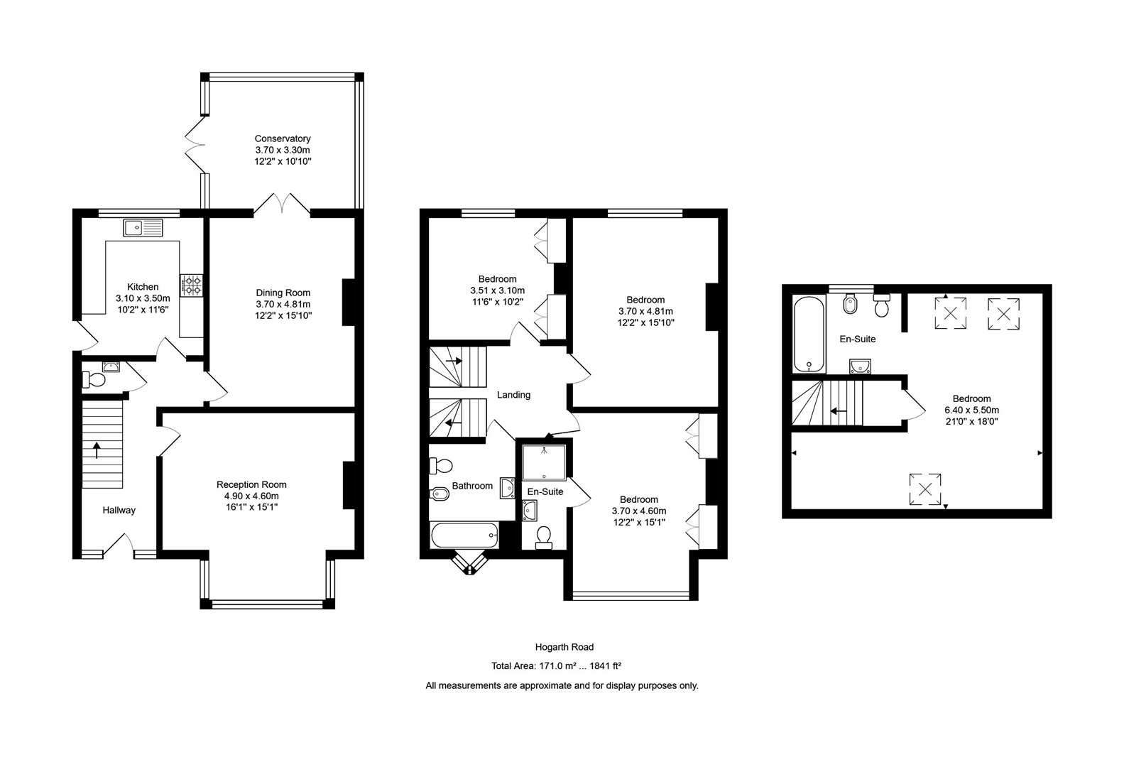
Available Now! Fantastic four bedroom semi-detached family home with west facing garden, moments from Hove seafront. Having been beautifully refurbished, with stunning period features and a modern design, this exceptional home is a real treat. With four large double bedrooms, most with built in storage, two en-suite bathrooms and two generous reception rooms, it offers versatile living spaces which would be ideal for any family. You will also find a recently refurbished three piece main bathroom suite, downstairs W/C and conservatory leading out to large rear west facing garden.
The location will appeal to many being situated between Portland and New Church Road you will find a plethora of local shops, restaurants and amenities all on your door step, along with the seafront being just a short walk away. Both Aldrington Station and Hove Mainline Station are easily accessible offering regular and direct links to London.



































