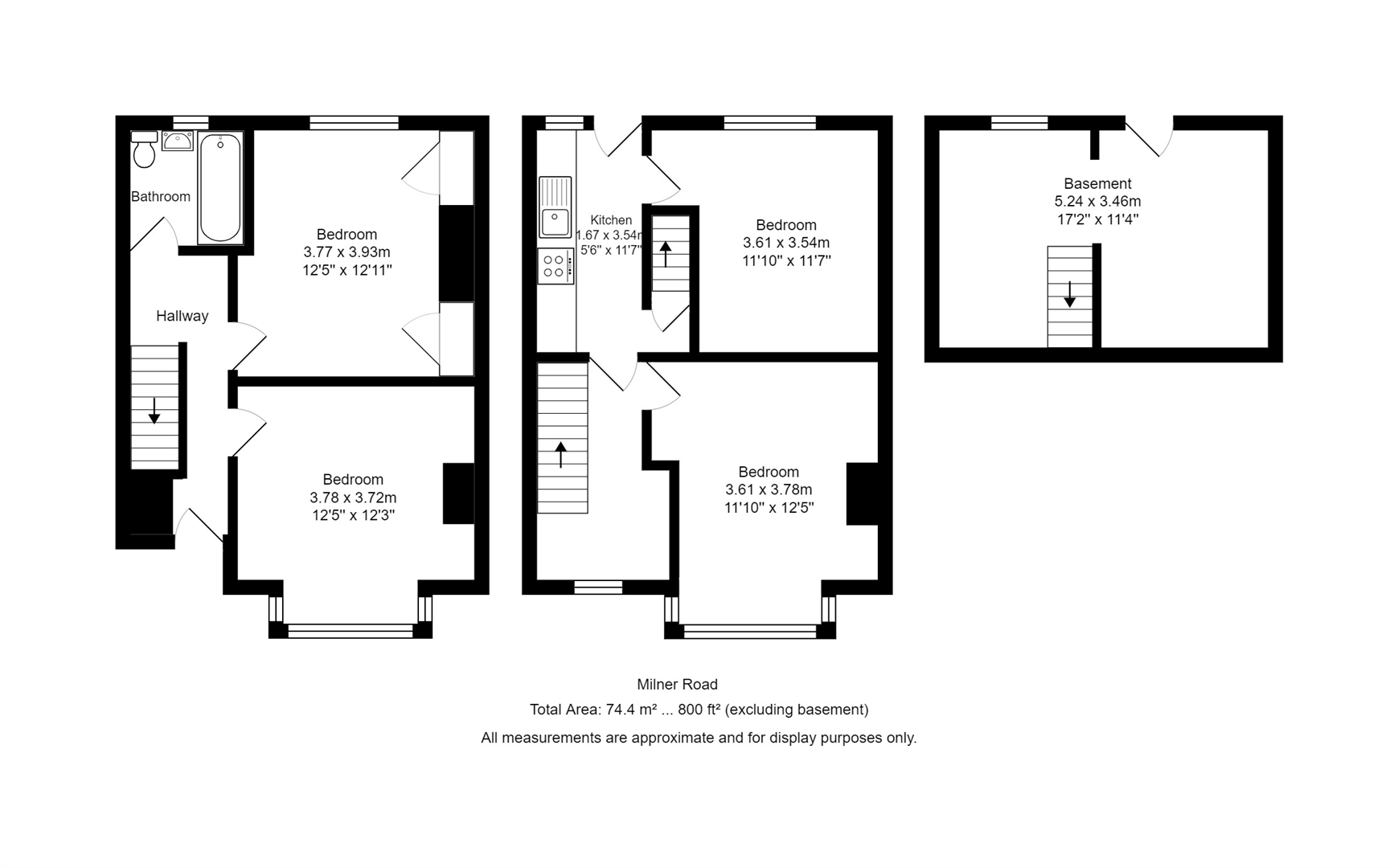
Milner Road, Brighton
£385,000- 3 Bed
- 1 Bath
Superb maisonette, with HMO licence for 4 sharers. This property set over 3 floors; has neutral décor throughout with bright and spacious rooms and a great layout all combining to make a fantastic apartment. The property is currently laid out as four double bedrooms, modern bathroom, galley kitchen with direct access out to the private south facing rear garden and large basement room which works perfectly as a snug or as further storage. The flat also benefits from no onward chain and has been previously let out for £2,700 per month.
Located on Milner Road, the property is perfectly situated being moments from Brighton University and a short bus ride away from Sussex University Campus.




























