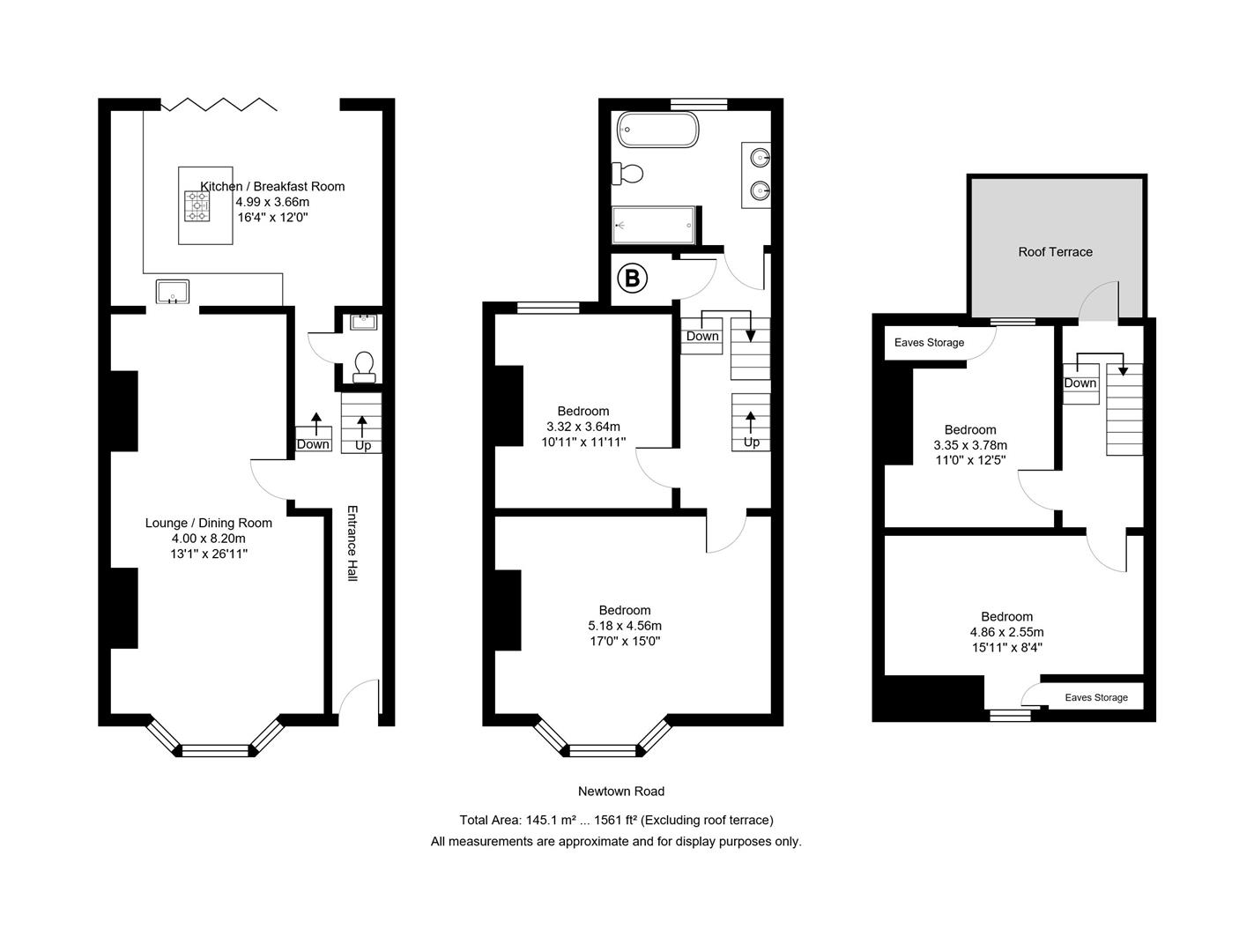
Newtown Road, Hove
£850,000- 4 Bed
- 2 Bath
Located on Newtown Road in the vibrant area of Hove, this stunning Victorian house offers an exceptional living experience. With four spacious double bedrooms, this property is perfect for families or those seeking extra space. The through lounge diner provides a welcoming atmosphere with high ceilings and some gorgeous period features, ideal for both relaxation and entertaining guests.
The heart of the home is undoubtedly the gorgeous kitchen diner, which opens seamlessly onto a delightful south-facing garden. This outdoor space is perfect for enjoying sunny days and al fresco dining. Additionally, the property boasts a south-facing roof terrace, providing a private retreat with lovely views.
Conveniently located near Hove mainline station, this home is an excellent choice for London commuters, making it easy to travel to the capital while enjoying the charm of Hove and all it's amenities, with cafes, restaurants, bars all nearby. Hove Park is also just a short walk away.
This property combines period features with modern living, making it a truly special place to call home. Don't miss the opportunity to view this remarkable Victorian residence.









































































