Upper Shoreham Road, Shoreham-By-Sea
£1,100,000- 4 Bed
- 2 Bath
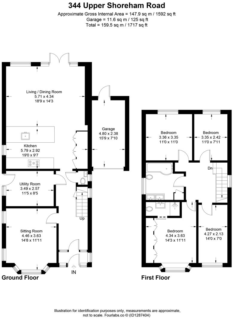
This fantastic family home has been extended and modernised to a high standard throughout. The layout, good sized rooms and amount of natural light all combine to create a real sense of space. The accommodation comprises; on the first floor, four double bedrooms - the principle benefitting from a newly added ensuite shower room, stunning family bathroom complete with double vanity unit. The ground floor has a double aspect lounge with south facing bay windows, cloakroom, utility room and impressive open living area. The recent full width extension has transformed this space and offering the wow factor to this already beautiful property. The garden is a lovely size with patio areas either size of the lawn, allowing for multiple outside dining spaces and plenty of sun. Additional benefits include off street parking for multiple cars and a useful garage.
This location is perfect to access all that Shoreham has to offer including popular Primary Schools, Buckingham Park and the River Adur within walking distance. The Town Centre is close by with a range of popular shops, cafes and restaurants whilst Shoreham Mainline Station offers regular and direct links to London.






































































